2007 | Neue Mitte Asperg (FP7)
Stadt Asperg
| Einladungswettbewerb | 1. Preis 2001 | |
| Bauherr | Bauherrengemeinschaft "Neue Mitte” | |
| Bruttorauminhalt | ca. 44.000 m² | |
| Nutz- und Wohnflächen | ca. 6.000 m² | |
| Freiflächen | ca. 8.000 m² | |
| Tiefgarage | 105 Stellplätze | |
| Gesamtbaukosten | 14 Mio Euro | |
| Fertigstellung | Sommer 2007 | |
| Leistungsphasen | LPH 1 bis 9 |
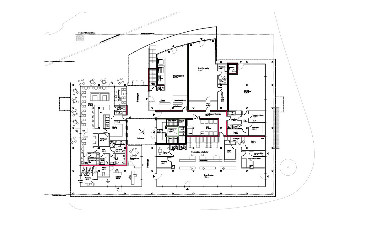
Neubau Geschäftshäuser mit Tiefgarage, Sanierung Rathaus und Herstellung Marktplatz „Neue Mitte Asperg“
Durch die neue Führung der Markgröninger Straße konnte ein verkehrsgeschützter Bereich um das Rathaus als Voraussetzung zur Gestaltung der “Neuen Mitte” in Asperg entwickelt werden.
Unter dem Platz entstand eine großzügige Tiefgarage mit Zufahrt von der Markgröninger Straße aus. Prägend für das neue Zentrum sind die beiden neuen Geschäfts-häuser. Diese bilden die räumliche Ordnung im Zusammenwirken mit dem neuen Kleeblatt Pflegeheim auf der Südseite der Markgröninger Straße.
Durch die Nutzungsmischung (Läden, Gastronomie, Büros, Arztpraxen und Wohnungen) mit dem Parkierungsangebot und dem verkehrsfreien Marktplatz entstand so ein attraktiver Zentrumsbereich in historischer Ortslage.
Mit der Idee, die Stadtbücherei in das Zentrum zu integrieren, wurden deutliche Synergieeffekte zwischen den öffentlichen-kulturellen Angeboten und den gewerblichen Nutzungen ausgelöst.
Die Baukörperstrukturen setzen durch ruhige, mittel- große Gebäudeeinheiten nutzungsbezogene Akzente und geben der neuen Mitte den Maßstab einer modernen Kommune, die sich vom Dorf zu einem wichtigen Baustein der Region entwickelt hat.














