Start
Aktuelles
Büro
Besondere Leistungen
Städtebau
Freiraum
Architektur
Wettbewerbe
Wettbewerbsmanagement
Stellenangebote
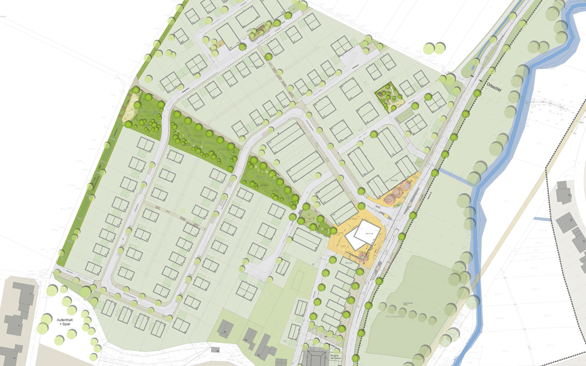
Der Gemeinderat der Stadt Steinheim beschließt am 29.06.2020 den Entwurf zur Freiflächenplanung im Neubaugebiet "Scheibenäcker".
Nähere Informationen zur Freiflächenplanung "Scheibenäcker" in Steinheim an der Murr finden sie unter
Freiraum