
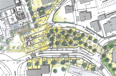
Gemeinde Lenningen: Planungskonkurrenz Neue Mitte Oberlenningen
Teilnehmer: 6 eingeladene Büros
Betreuung und Vorprüfung: FPZ Zeese Stadtplanung + Architektur
Sitzung der Bewertungskommission am 09.03.2018
1. Rang: Wick + Partner, Stuttgart mit Fichtner Water & Transport GmbH, Stuttgart
2. Rang: mh Architekten, Stuttgart mit Dipl.-Ing. Hans Peter Henes, Verkehrsplanr, Stuttgart
3. Rang: Zoll Architekten Stadtplaner GmbH, Stuttgart mit Köhler + Leutwein, IB für Verkehrswesen, Karlsruhe …
» weiterlesen

Artikel im Kocher-Lein-Bote zu Abtsgmünd Nord
FPZ Zeese Stadtplanung + Architektur wurde auf Basis des städtebaulichen und freiraumplanerischen Vorentwurfes für die weitergehende Planung beauftragt.
» weiterlesen

Stadt Asperg, Satzungsbeschluß Bebauungsplan "Seestraße / Friedrichstraße"
Schrägluftbild Areal Seestraße / Friedrichstraße
Satzungsbeschluß am 25.04.2017 in der Sitzung des Stadtrates
Die Festsetzungen des Bebauungsplans ermöglichen eine optimale Steuerung der städtebaulichen
Entwicklung im Plangebiet und damit die Umsetzung der Ziele im Rahmen der Stadtentwicklung
von Asperg.

